One Touch Solutions, NOIDA

PROJECT BRIEF

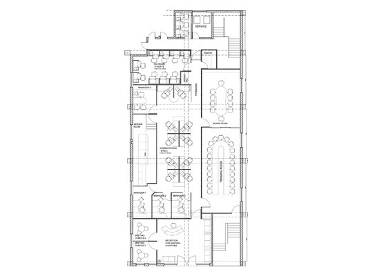
A mid-sized multi-national BPO's desire to declare their strength in the industry is addressed with this office, wherein the Administration Office on the ground level is turned into a high-end public face of the company. On the other hand, the Working Floors are done with a minimalist approach, ensuring that the environment is cheerful and comfortable for the staff. Further, the server room on the ground floor is not thought of as a 'service' area, but rather, becomes the centre-show window of the company, exhibiting their technological forte.

 

PROJECT FACTS:

AREA - 10,000 sq. ft.
COST - INR 14.3 Million
DESIGN ARCHITECT- AAS Design Solutions (P) Ltd.
ANKITA'S ROLE - Chief Designer